热装小区·绿城.明月兰
绿城·明月兰庭,绿城中国新疆公司2020战略之作,项目入主乌鲁木齐市高新区。位于长春北路和城北主干道交汇处,紧邻高新区万达广场,乌鲁木齐市重点130中学,依托片区成熟基建、畅通交通网路、优质教育资源、城北发展主力区域等综合价值,打造城北理想生活住区。项目总占地面积约13.2万m2,总建筑面积约24万m2,约1.8低容积率,整体规划布局错落有致,景观延中轴空间序列铺陈有序。接下来小编带你们分析本小区的两套热门户型。
户型:66.25㎡
居室:3室2厅1厨1卫
建筑面积:100㎡
户型解析:
优:
A:本户型的动静线没有交叉,布局很理想,私密性能得到很好的保证。
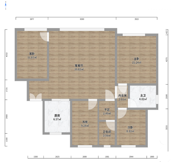
户型:105.27㎡
居室:4室2厅1厨2卫
建筑面积:131㎡
户型解析 :
优:
A:本户型是双向对侧采光,属于对流,通风很好。
劣:
A:本户型动静分区不是很理想,动区插入静区将静区分离,插入的是卫生间,私密性不佳。
建议:1.动静区分开才能保障居室主人的日常生活流通顺畅,让休息的人能安心休息、走动娱乐的人可以放心活动,互不干扰。
2.如果动静分区不合理,就难以形成私密空间,居家生活会让人觉得不舒服,长期居住对居室主人的心情和健康会产生不利影响。